The Woods

On this page:
- Why Choose The Woods?
- Tours and Photos
- Unit Options and Floor Plans
- Dimensions and More Details
- Costs and Agreements
Why Choose The Woods?
The Woods is a group of nine fully furnished co-ed residence halls (Boston, Cedar, Hawthorn, Hickory, Jacob, Laurel, Maple, Oak, and Pine Halls) that offers dorms with suite-style bathrooms for first-year students. You can live alone, with one roommate, or with two roommates. Dining plans are required. All students are eligible to live in The Woods. The Woods is located near the basketball and volleyball courts and offers several living learning communities. The Woods is also a short walk to campus, putting you close to your classes, events on campus, and food.
Location
The Woods is a short walk or shuttle ride to the main part of campus. View The Woods on the campus map: Boston | Cedar | Hawthorn | Hickory | Jacob | Laurel | Maple | Oak | Pine
Amenities
Building
- The District: Business Living Learning Community
- Inspire: Future Educators Living Learning Community
- Momentum: Sports and Recreation Living Learning Community
- Impact: Community Service & Civic Engagement Living Learning Community
- Express: Arts and Humanities Living Learning Community
- Floor lounges
- Laundry facilities
- Vending machines
- Pedestrian plaza
- Fitness trail
- Volleyball court
- Basketball courts
Room
- Microwave and refrigerator
- All utilities included
- High-speed internet and streaming cable TV access
- Air conditioning
Note: Student housing includes furniture, but does not include electronics, bedding, kitchen cookware/dishes/utensils, or decorations. Please visit the Wright State Campus Store website to start ordering gear to decorate your place!
Standard Features
- Resident Assistants (R.A.)—An R.A. is a person who's been trained to assist you, support you, help you with conflicts, and provide educational opportunities and social activities.
- Community Council—Get involved in planning activities and governance for your community.
- Social Activities—Many of these are planned so you get to know your fellow community members.
Tours and Photos
Single
Bathroom
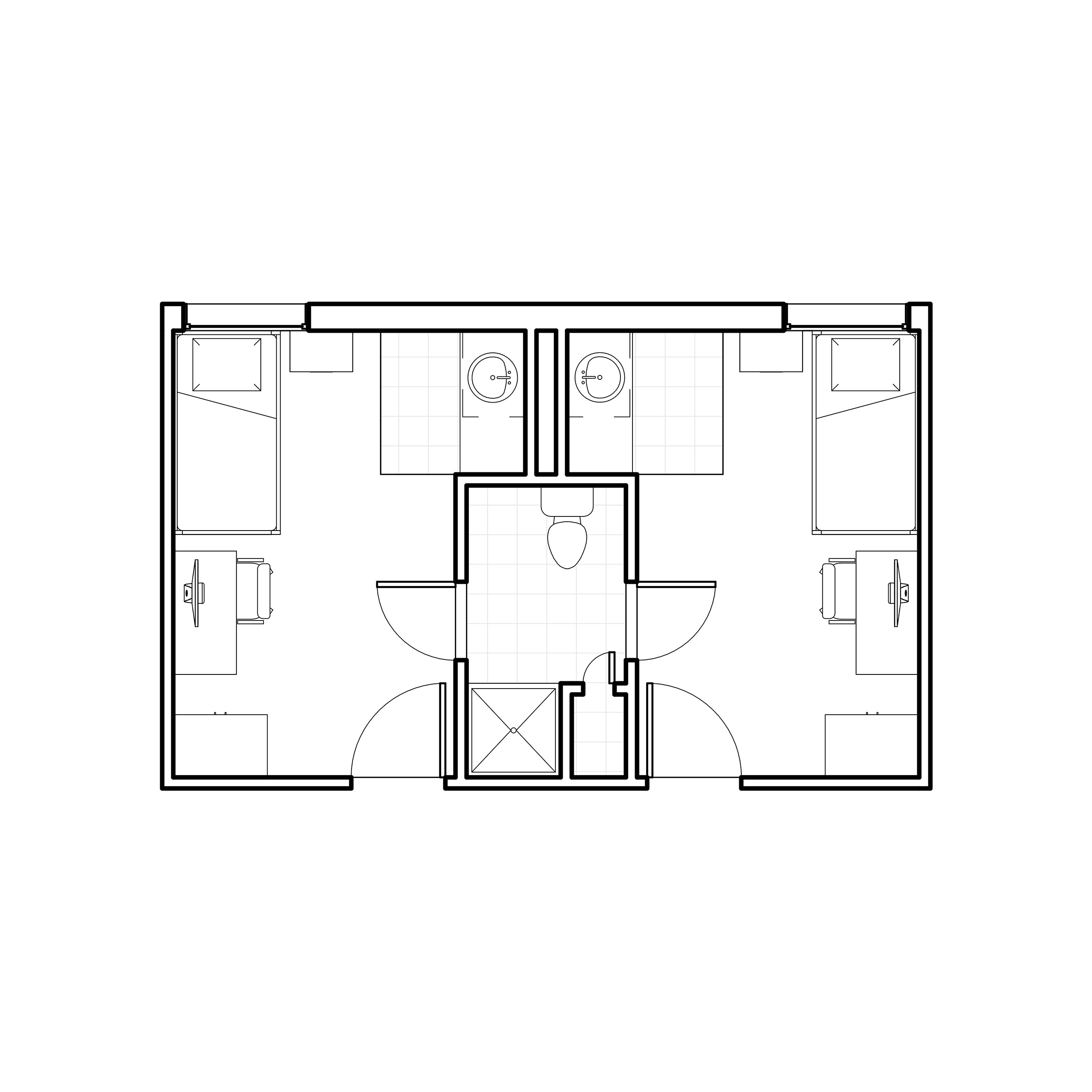
Double
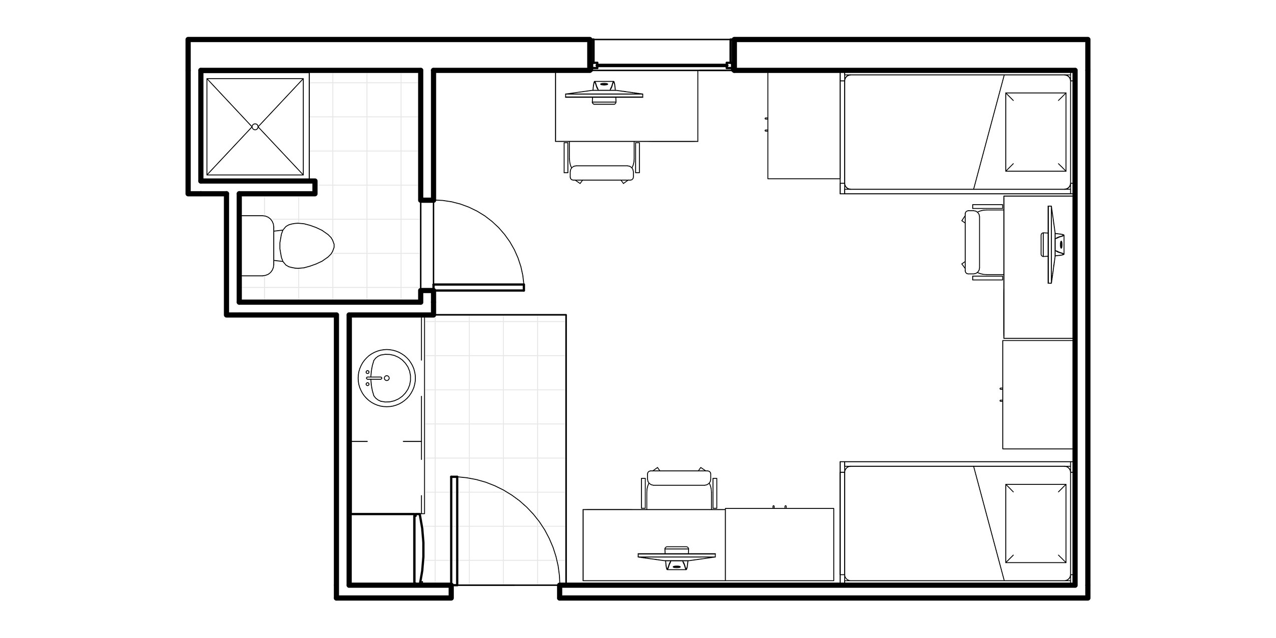
Super Single
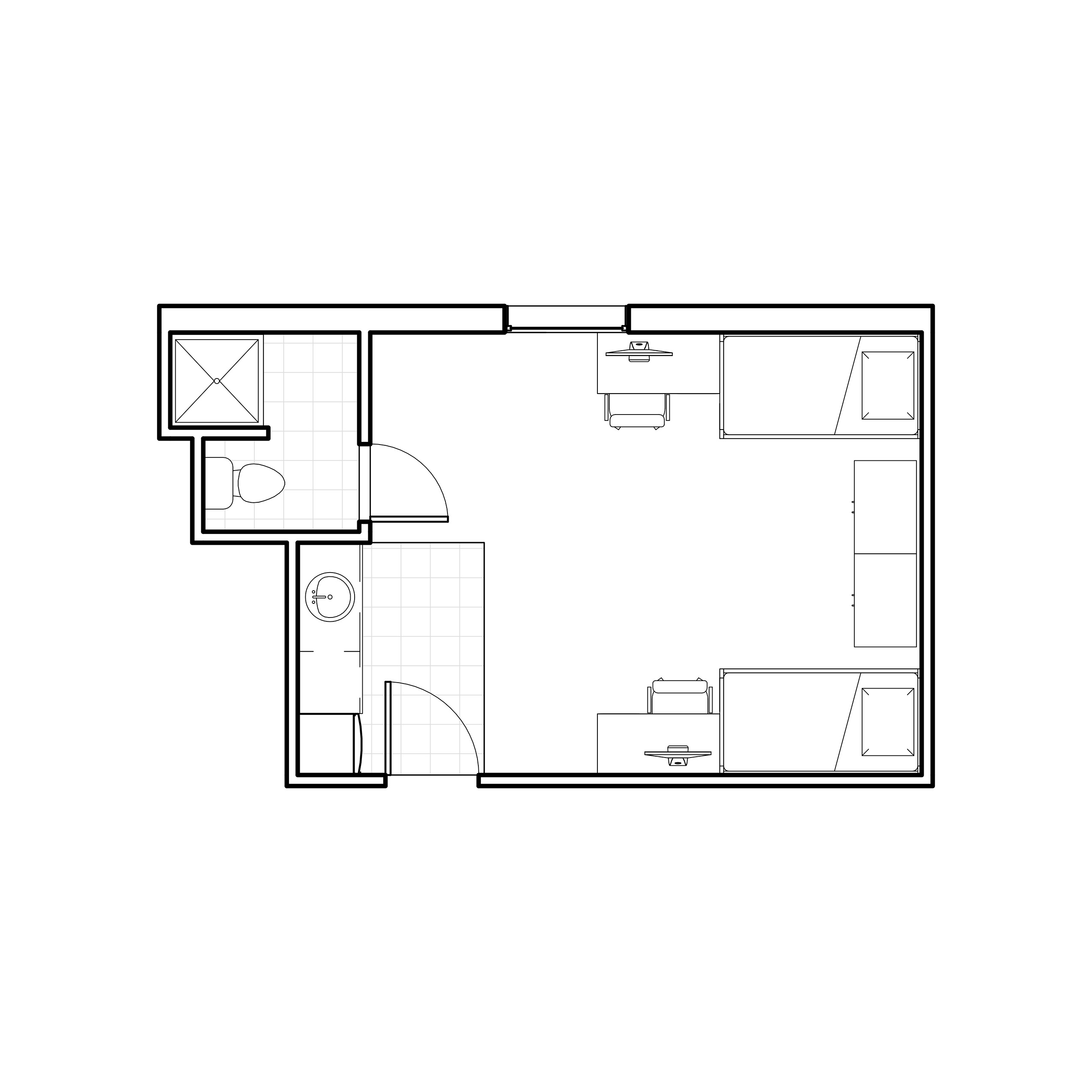
Double Deluxe
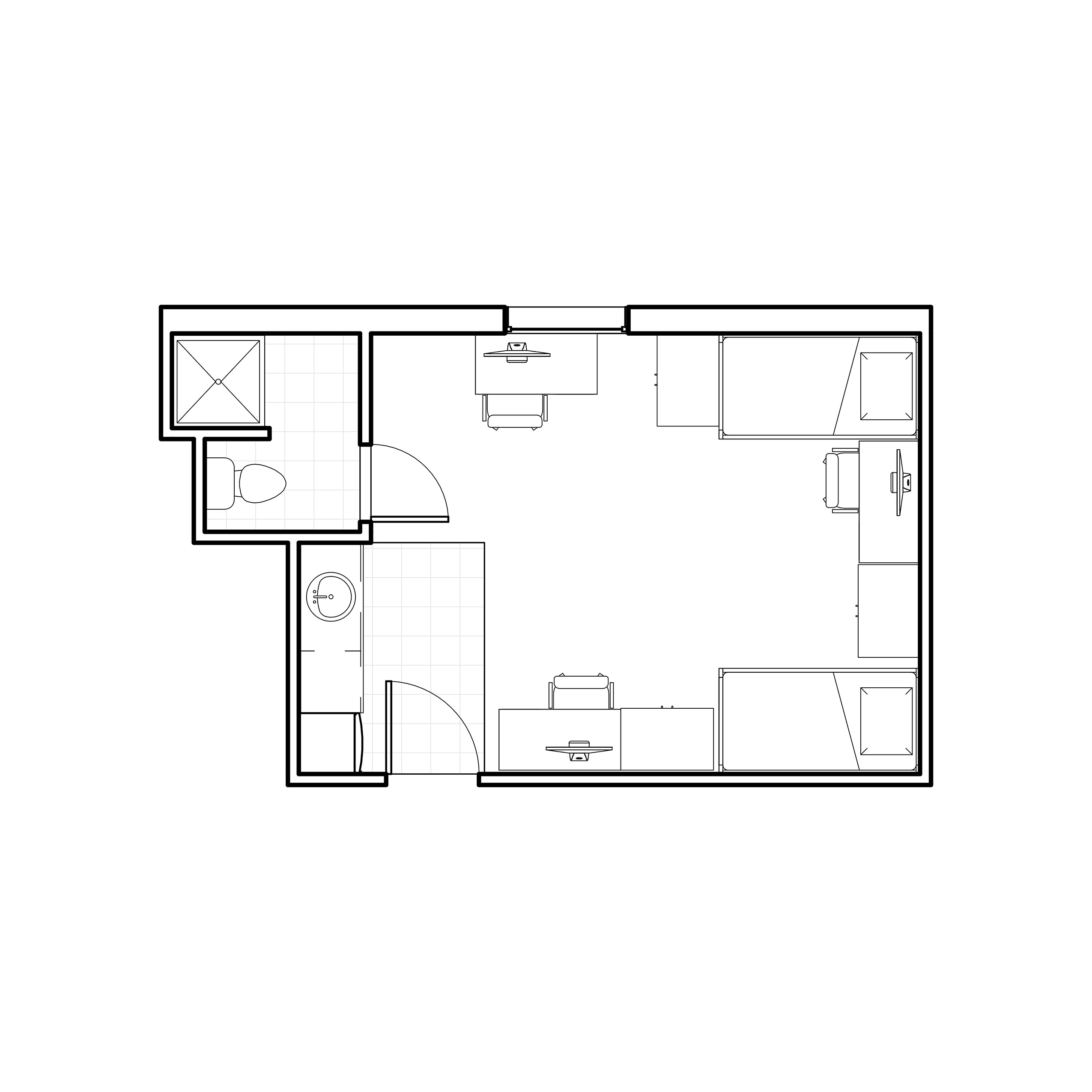
Triple
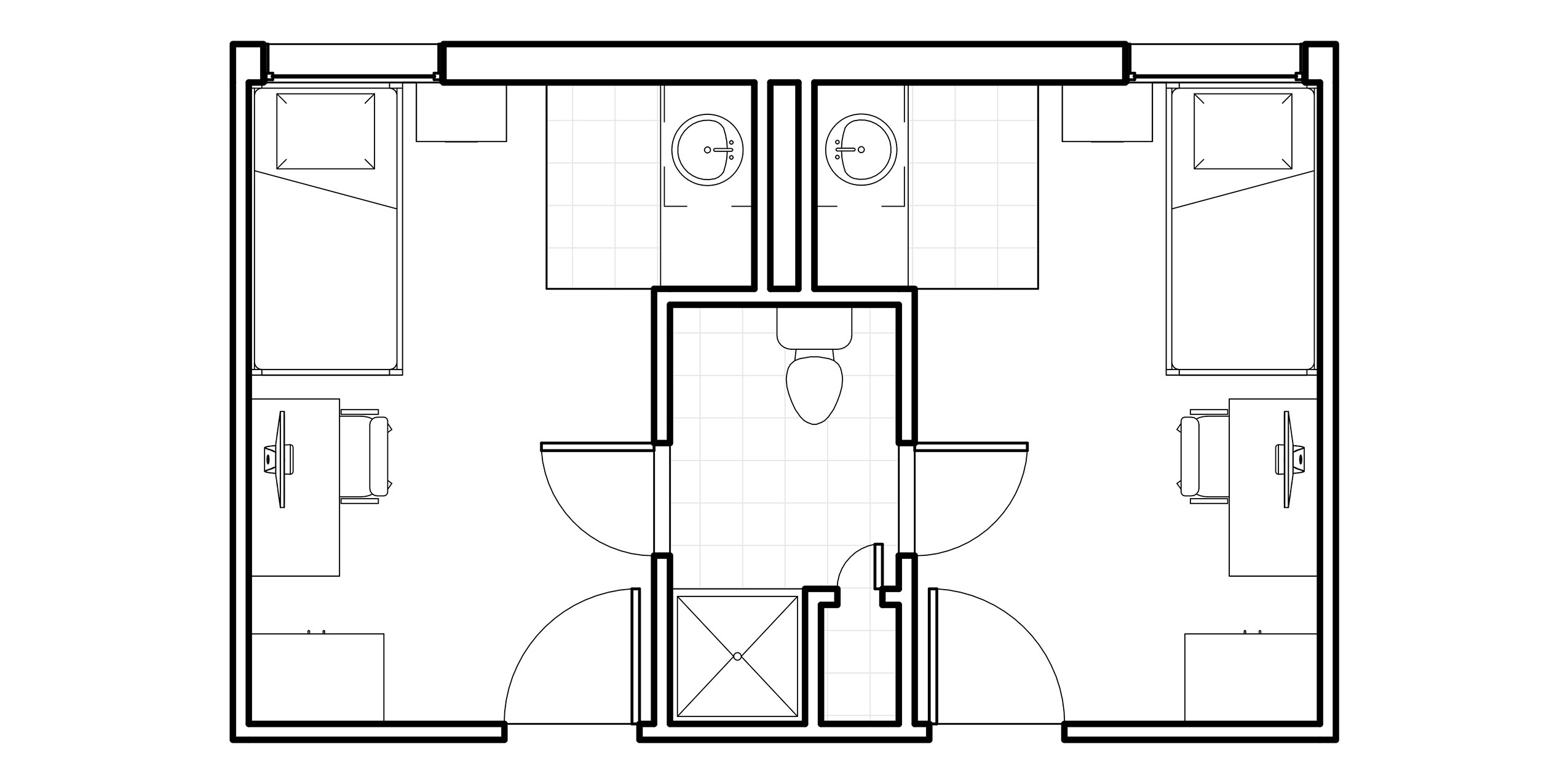
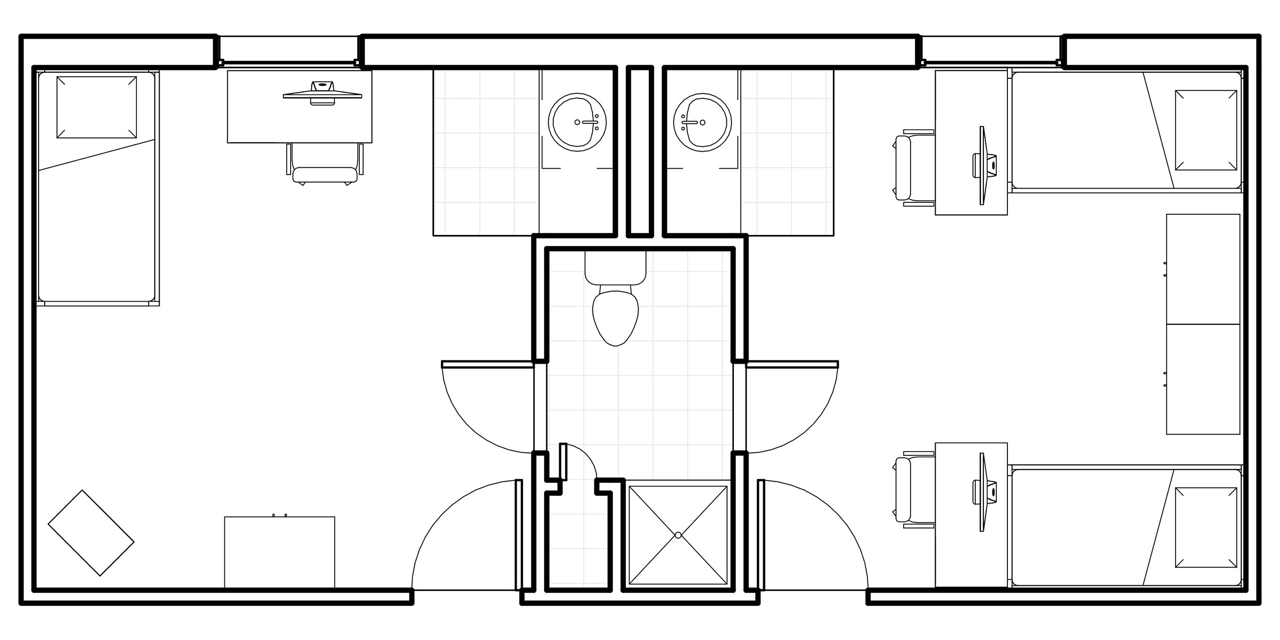
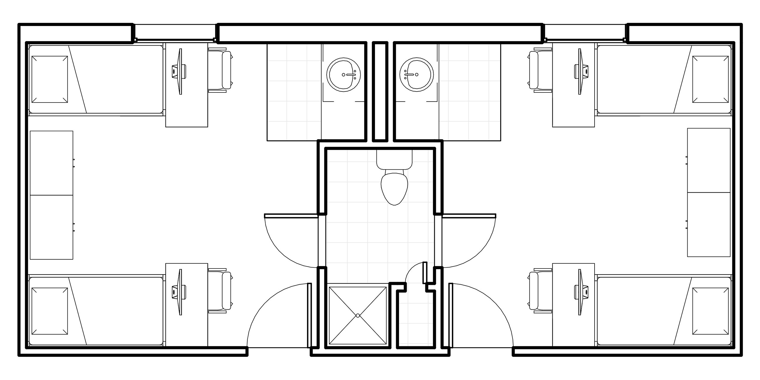
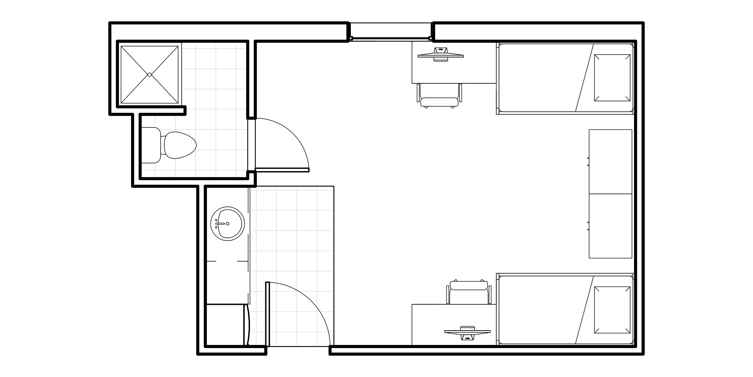
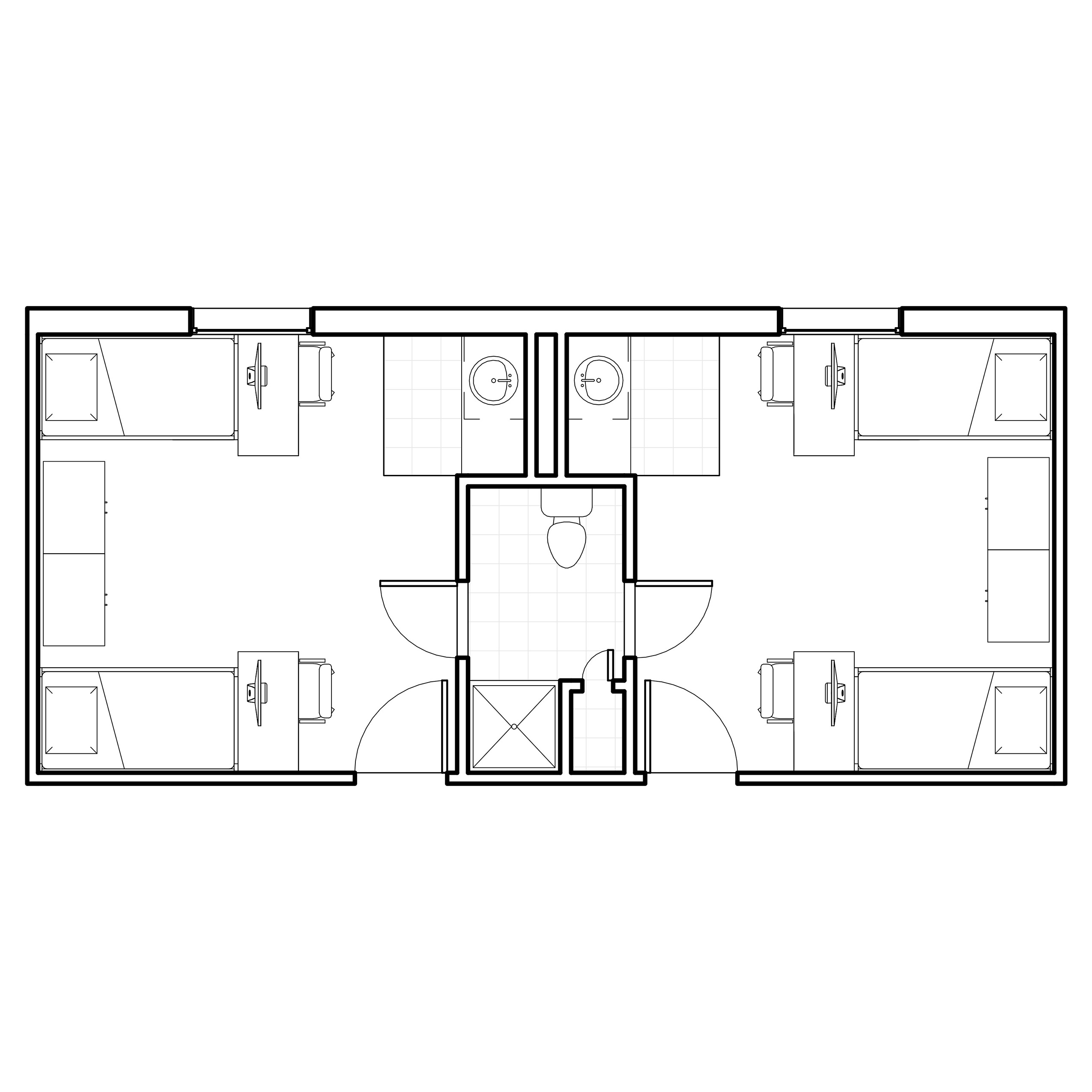
Unit Options and Floor Plans
All dimensions are approximate and may vary from room to room.
Super Single
Students per room: one
- Room: 14'3"' x 13'7"
- Window size: 47” W 46” H (Curtains supplied)
Double Deluxe
Students per room: two
- Room: 14'3"' x 17'9"
- Window size: 47” W 46” H (Curtains supplied)
Dimensions and More Details
- Automatic Door Opener at Building Entrance: Yes
- Is the opener available on request? Yes
- Hallway/ Security doors? Yes
- Passenger Elevator? No
- Room Lighting: 1 overhead, 1 sink vanity light
- Furniture in the room (Woods Double):
- 2 Desks (in Double)
- Size of writing surface: 45” W x 24” D
- Lap drawer/Keyboard tray
- 3 drawers - Drawer size: 14” W x 3” H x 19” D (2 top drawers) 14” W x 9” H x 19” D (bottom file drawer)
- Type of handles: recessed
- Dimensions of leg room area for students in wheelchairs
- Floor to underside of lap drawer: 25” H Lap drawer can be removed - New Height: 29”
- Width of leg area: 26” Depth of leg area: 24”
- Can rear support be removed/moved to increase legroom? No
- 2 Wardrobes (in Double)
- 35.5” W x 78” H x 23” D
- Can be locked? No
- 1 Long hanging rod: 43” H x 33” W
- 1 Shelf: 34” W x 8” H x 12” D
- 2 Drawers 32” W x 5 ”H x 16” D
- 1 Mirror: 14” W x 50” H
- 2 chests/dressers (in Double)
- Type of handles: recessed
- 2 drawers - Drawer Size: 32” W x 5” H x 16” D
- Will it fit under the bed? Yes
- Can you stack them 2 high? Yes
- 2 Bed Frames and Mattresses (in Double)
- Mattress size: 36” W x 79” L x 6” D
- Can the bed be bunked? Yes
- Does the bunked bed have multiple heights to choose from? Yes
- Can the bed be lofted? No
- Does the bed have multiple mattress heights to choose from? Yes
- What are they? Low: 23” from the floor; High: 32” from floor
- Space under the bed for storage: 13” H x 36” D x (Low); 23” H x 36” D (High)
- 2 Desks (in Double)
- Kitchenette
- Appliances provided:
- Refrigerator: mini (32”x 20”) 18”
- Microwave (9”x 14”) 11” D
- Kitchen Cabinets:
- How many? 1 upper, 23” x 23”
- 1 lower (22”x 29”, contains one shelf) 23.5” D
- Kitchen Countertop:
- Countertop space: 52”x24”, the sink covers an 18” diameter area
- Appliances provided:
- Bathroom
- Bathroom style: Suite style
- Shower only 75” H 34” W 34” D
- One Bathroom in unit
- Is a bathtub available? No
- Bathroom amenities:
- Medicine cabinet (located in room) (28”x14”)
- Wall cabinets (some buildings) (17.5”x27”, contains one shelf) 11” D
- 2 shelves in each cabinet
- # of outlets: 0
- Showers will not have curtains, but a plain one can be picked up at the Maintenance Tent on move-in day.
- Other information not listed above:
- All units have carpet
- 4 outlets per room and 1 near the sink
- 1 network/internet jack per resident
- A/C in all rooms, controlled by residents, not operable under 65 degrees outside temperature
- Doubles are available in all buildings. Boston, Cedar, Laurel, and Jacob are strictly doubles (except CA rooms)
Costs and Agreements
The Wright Guarantee Tuition Program guarantees the same annual cost of tuition, on-campus housing, and dining over a four-year college career for new incoming, in-state, degree-seeking undergraduate students. You will pay the exact same rate for tuition, housing, and dining during your four years at Wright State.
The standard agreement is two semesters (academic year).







